mbg-logo
ემ.ბი.ჯი ჯგუფი phone(+995) 592 72 72 47
mbg-logo
ემ.ბი.ჯი ჯგუფი Whatsapp
ID13540

იყიდება კომერციული ფართი ი. ჭავჭავაძის გამზირი ვაკე ვაკის რაიონი თბილისი

calendar15.12.2025 views17269
ფასი შეთანხმებით
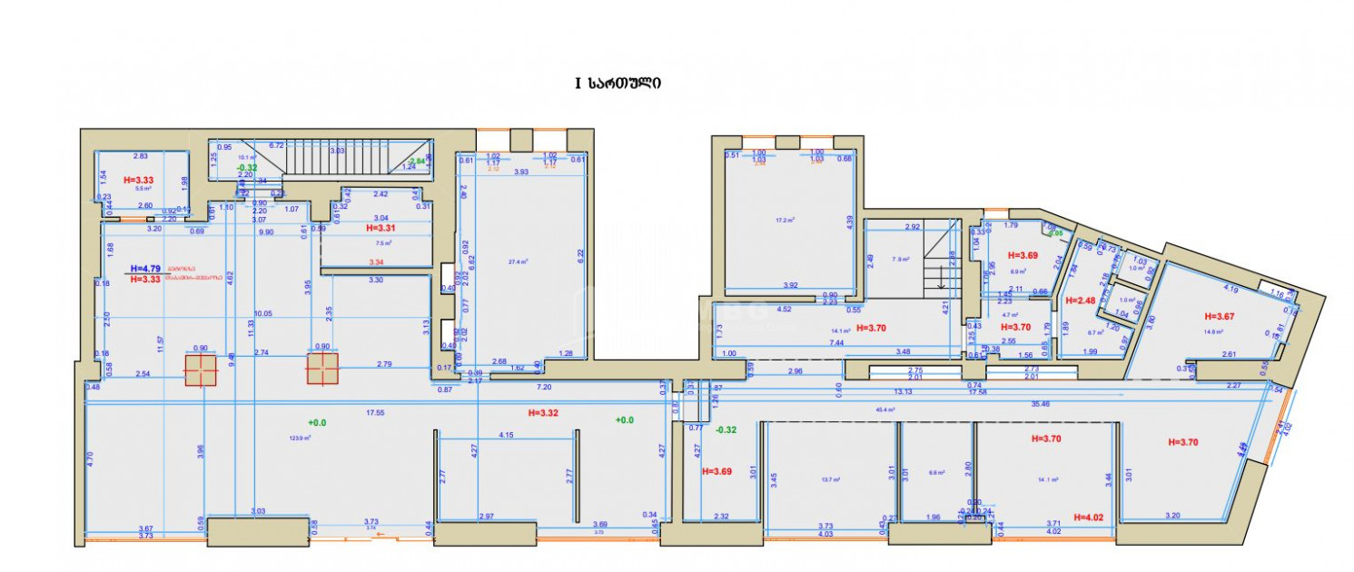
  • ფართობი ფართობი:450 მ²
  • უძრავი ქონების დანიშნულება უძრავი ქონების დანიშნულება: სილამაზის სალონი / ესთეტიკის ცენტრი
  • მდგომარეობა მდგომარეობა: ახალი გარემონტებული
  • უძრავი ქონების სტატუსი უძრავი ქონების სტატუსი: ძველი აშენებული
  • ეზოს ფართობი ეზოს ფართობი: 100 მ²
  • სართული/სულ სართული/სულ: 1/6
  • სამზარეულოს სივრცე სამზარეულოს სივრცე: 20 მ²
  • მისაღები სივრცე მისაღები სივრცე: 100 მ²
  • კაბინეტი კაბინეტი: 2
  • სველი წერტილი სველი წერტილი: 4
  • სასაწყობე სივრცე სასაწყობე სივრცე: 20 მ²
  • პარკირება პარკირება: შეუზღუდავად
  • ადგილების რაოდენობა ადგილების რაოდენობა: 40 პერსონა
business ბიზნესი : ესთეტიკური ცენტრი
მახასიათებლები
  • check ლაუნჯი / გასართობი სივრცე
  • check ვიტრაჟი - 40
  • check დამოუკიდებელი შესასვლელი
  • check ჭერის სიმაღლე - 3 მ
  • check ავეჯი
  • check ტექნიკა
  • check დანადგარების აღჭურვილობა - ესთეტიკის ცენტრის სრული მოწყობილობა
  • check სავენტილიაციო სისტემა
  • check გათბობა-კონდენცირება
  • check ხმაურის იზოლაცია
  • check წყალმომარაგება - 196
  • check ელ. ენერგია
  • check სამფაზიანი ძაბვა
  • check ტრანსფორმატორი - 50 კვტ
  • check ბუნებრივი აირი
  • check კანალიზაცია
  • check ინტერნეტი
  • check სათვალთვალო კამერები
  • check ოთახი პერსონალისთვის
  • check გამწვანებული სივრცე
  • check არასასოფლო - სამეურნეო
  • check კეთილმოწყობილი ეზო
დამატებითი ინფორმაცია

🌟 ექსკლუზიური შეთავაზება – ახალი ფასი .... 
 პრემიუმ კლასის სრულად აღჭურვილი ესთეტიკის ცენტრი ვაკეში! 

👇📢 ----- ი ყ ი დ ე ბ ა -----
საქართველოში ერთ-ერთი ყველაზე დიდი, პრემიუმ კლასის და სრულად აღჭურვილი ესთეტიკის ცენტრი – ვაკეში, ჭავჭავაძის გამზირზე, ვაკის პარკის მოპირდაპირედ.

📐 ობიექტის ძირითადი მახასიათებლები
_ საერთო ფართობი: 450 მ²
_ პირველი სართული კომერციული სივრცე
ქუჩის პირი: 350 მ² 
ნახევარსარდაფული მოწყობილი: 100 მ² 

🧊 ფასადი: სრულად ვიტრაჟული, გამზირზე გახსნილი დაახლოებით 40 მეტრიანი ფრონტალური ხედით, რაც უზრუნველყოფს მაქსიმალურ ხილვადობას და ვიზუალურ ეფექტს.

💹 ობიექტი გარემონტებულია უმაღლესი სტანდარტებით და სრულად დაკომპლექტებულია მოქმედი სალონისა და ესთეტიკის ცენტრისთვის საჭირო ყველა ტექნიკით, აპარატურითა და ინვენტარით.

🛋 ინტერიერი და დიზაინი - ცენტრი აღჭურვილია:
_ ევროპული, პრემიუმ კლასის ავეჯით.
_ იტალიური და ამერიკული წარმოების თანამედროვე აპარატურითა და დანადგარებით
_ შიდა სივრცე დაყოფილია გამჭვირვალე მინებით გამოყოფილ, სხვადასხვა დანიშნულების კაბინეტებად და ოთახებად, რაც ქმნის:
_ მაღალი პროფესიონალიზმის ატმოსფეროს
_ ესთეტიკურად გამართულ, სტრუქტურირებულ განლაგებას
_ მომხმარებელზე მაქსიმალურად მორგებულ, კომფორტულ გარემოს

ვიტრაჟულ ნაწილში დამონტაჟებულია სარეკლამო ელექტრონული მონიტორები, რომელიც ზრდის ობიექტის ვიზიბილობას გამზირიდან.

💆‍♀️ ფუნქციური ზონები და აღჭურვა
ცენტრი მოიცავს სრულფასოვან ესთეტიკურ ინფრასტრუქტურას:
ესთეტიკური პროცედურების კაბინეტები – სრული პროფესიული აპარატურით
იტალიური სოლარიუმის სივრცეები
სწრაფი დაფერვის სისტემები
მაკიაჟისა და ვიზაჟისტის ზონები
ესთეტიკის კაბინეტები
მანიკიურისა და პედიკიურის ღია და დახურული ოთახები

ფუნქციური დაგეგმარება სრულად აკმაყოფილებს ზედა სეგმენტის, მაღალი სტანდარტის ესთეტიკის ცენტრის მოთხოვნებს.

🔒 უსაფრთხოება და სისტემები
ობიექტი სრულად არის აღჭურვილი:
თანამედროვე სახანძრო უსაფრთხოების სისტემით
ვიდეოთვალთვალის სისტემებით, რაც უზრუნველყოფს როგორც სტუმრის, ასევე პერსონალისა და ინვენტარის დაცულობას.

🚗 პარკინგი და წვდომა
შენობას აქვს წინა პერიმეტრზე ფასიანი ზონირება:
როგორც უფასო, ისე ფასიანი პარკირების შესაძლებლობა
პარკირების შეზღუდვების გარეშე
ლოკაცია – ჭავჭავაძის გამზირი, ვაკის პარკის მოპირდაპირედ – ქმნის გამორჩეულად მაღალი გამტარიანობის და პრესტიჟულობის წერტილს.

💼 უძრავი ქონება როგორც მზა ბიზნესი
უძრავი ქონება იყიდება სრული, მოქმედი ბიზნესის სახით, რაც მოიცავს: ბრენდს
სრულ აღჭურვილობასა და აპარატურას
უმაღლესი ხარისხის ინტერიერის დიზაინს
მოქმედ, ორგანიზებულ სამუშაო პროცესს

📃 ეს არის იდეალური შესაძლებლობა:
_ როგორც ინვესტორისთვის, რომელიც ეძებს შემოსავლიან, მზად ინფრასტრუქტურას,
_ ასევე პროფესიონალი გუნდისთვის, რომელიც მზად არის 
_ დაუყოვნებლივ დაიწყოს პრემიუმ კლასის წარმატებული ბიზნესი ქალაქის ერთ-ერთ საუკეთესო ლოკაციაზე.

⚡ ყველა კომუნიკაცია შეყვანილი ინდივიდუალურად. საკუთარი ელ. ენერგიის წყარო. წყალ-არმირება, არხული ჩილერული გათბობა-კონდენცირება. ვიდეოკამერები.  ვიტრაჟზე 12 სარეკლამო მონიტორი, ბუნებრივი აირი. 

📞 დამატებითი ინფორმაცია და ნახვა
ფასი: 1 250 000 აშშ. დოლარი + დღგ. 
📱 +995 592 72 72 47

კომენტარი

TOP.GE